ЩД Киров 6х8м вход
ЩД Киров 6х8м обратная сторона
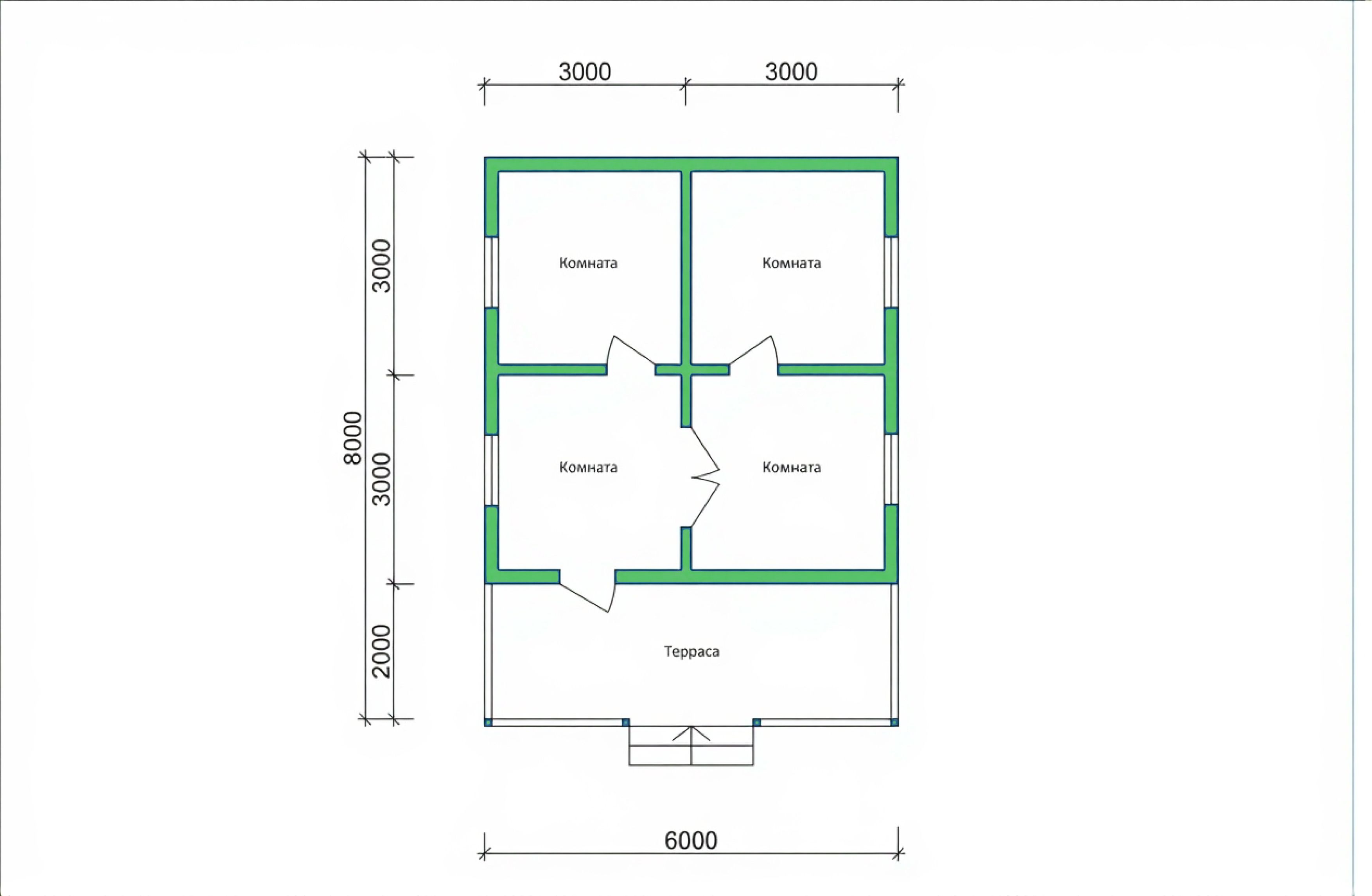
ЩД Киров 6х8м планировка

Щитовой дом ЩД Киров 6х8м

Щитовые дома от компании ЛенаДом – это оптимальное решение для тех, кто ценит комфорт и разумную цену. Наши щитовые дома идеально подходят как для постоянного проживания, так и для временного отдыха на даче. Они сочетают в себе современный дизайн, функциональность и доступность, что делает их привлекательным выбором для многих семей.

Утепление 50 мм

 516000 руб.

Утепление 100 мм

 554500 руб.

Живые фото ЩД Киров 6х8м

Описание

Планировка

Комплектация


Щитовые дома – это идеальное решение для тех, кто стремится к комфортной жизни на природе, не желая отказываться от современных удобств. Эти дома предназначены как для сезонного отдыха, так и для круглогодичного проживания, предоставляя вам возможность наслаждаться уединением и свежим воздухом в любое время года. Одним из главных преимуществ щитовых домов является их высокая скорость монтажа. Благодаря легкости конструкции и предварительной подготовке всех элементов, сборка занимает всего несколько дней, что позволяет вам быстро обустроить свое новое жилье и начать наслаждаться жизнью на даче.

Преимущества наших щитовых домов:

Чистовой пол из шпунтованной доски — высококачественная доска для создания ровного и прочного пола, идеально подходящая для любых помещений.
Стены и перегородки — экологически чистый материал для стен и перегородок, а также прочные и эстетичные варианты внутренней отделки, включая клееный брус для надежности и долговечности.
Деревянные филенчатые двери — качественные двери с элегантным дизайном и высокой прочностью.
Деревянные окна с одинарным остеклением — простые и надежные окна с деревянной рамой для тепло- и звукоизоляции.
Оцинкованный профлист — долговечная кровля из надёжного материала.
Обвязка из бруса — прочная обвязка для фиксации всех элементов конструкции, выполненная из бруса естественной влажности.
Монтаж на участке — все работы по монтажу входят в стоимость, гарантируя качественный и своевременный монтаж всех элементов дома.

  • ФУНДАМЕНТ - Блок фундаментный 200х200х400 мм
  • ЧИСТОВОЙ ПОЛ - Шпунтованная доска пола 21 мм
  • СТЕНЫ И ПЕРЕГОРОДКИ - вагонка Штиль класс А-Б
  • УТЕПЛЕНИЕ - минеральная вата
  • ДВЕРИ ДЕРЕВЯННЫЕ - Филенчатые
  • ОКНА - Деревянные, одинарного остекления
  • КРОВЛЯ - Оцинкованный профильный лист c21
  • ОБВЯЗКА - Брус 100х100 мм естественной влажности
  • МОНТАЖ НА УЧАСТКЕ - входит в стоимость

Дополнительно

Перечень дополнительных элементов конструкции и услуг

Ступени деревянные

Ширина 1 м, высота 0,45 м

4500 руб

Фундамент свайно-винтовой

76 мм (за шт)

89 мм (за шт)

4000 руб

4500 руб

Плита под блоки

400*400*50 мм (за шт)

500 руб

Замена половой доски

Толщина 35 мм (за 1 кв. м)

Толщина 28 мм (за 1 кв. м)

1450 руб

850 руб

Дверь металлическая

Стандарт

24000 руб

Пластиковые окна однокамерные

100*100 мм

120*100 мм

60*100 мм

10200 руб

11700 руб

8200 руб 

Обработка антисептиком

за 1 кв. м

500 руб

Доставка

за 1 км

150 руб

Аренда генератора

1 сутки

5000 руб

Запрос на подробный расчёт

Выбранная модель

Что хотите добавить к комплекту ЩД Киров 6х8м?

Фундамент свайно-винтовой
Окно пластиковое
Дополнения
Укажите ваш номер телефона *
Укажите ваше имя *
Укажите адрес доставки *
Нажимая кнопку, вы даете согласие на обработку персональных данных

ИП Понявин А.А.
ИНН 504021824659

Наверх
Пожалуйста, подтвердите, что вы человек